Viale dello Scalo S. Lorenzo, 13, 00185 Roma RM, Italia
Viale dello Scalo S. Lorenzo, 13, 00185 Roma RM, ItaliaNozioni di base
- Data aggiunta : Aggiunto 3 settimane fa
- Anno di ristrutturazione: 2025
- Piano terra: No
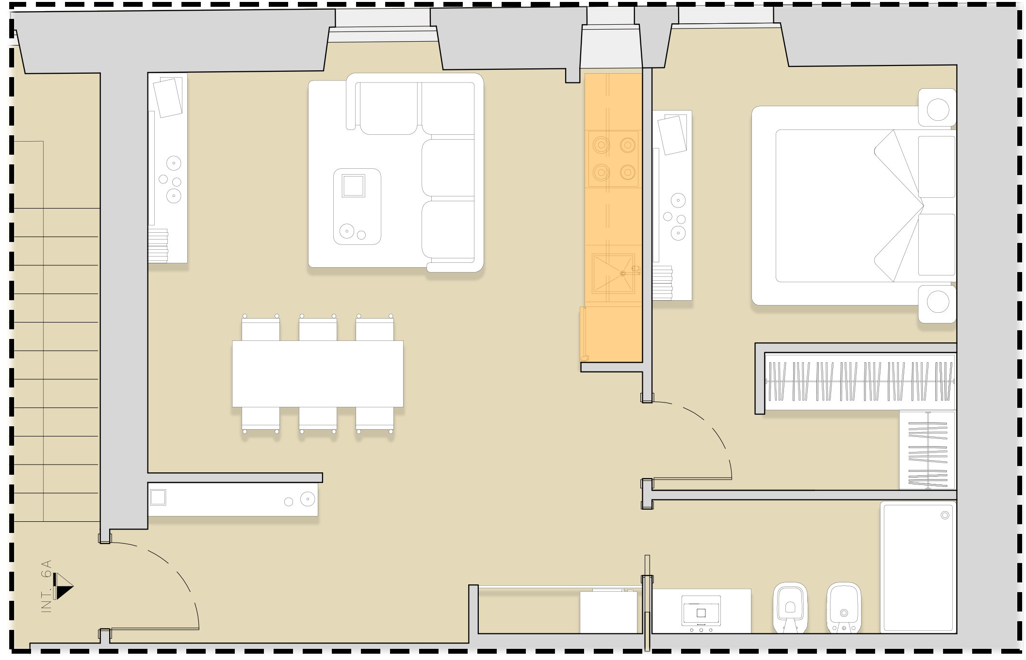
- Piano: 3
- Camere da letto: 1
- Bagni: 1
- Cucina abitabile: No
- Area: 64 m²
Descrizione
-
Descrizione:
Contatti:
0680813323382980499
Vivere a San Lorenzo
San Lorenzo è uno dei quartieri più affascinanti e ricchi di carattere di Roma. Situato a ridosso delle Mura Aureliane, tra la Stazione Termini e l’Università “La Sapienza”, il quartiere unisce un’anima storica e autentica a un crescente processo di valorizzazione urbana. La sua posizione strategica consente di raggiungere facilmente il centro storico, le principali arterie cittadine e i quartieri più rinomati della capitale.
Negli ultimi anni, San Lorenzo ha conosciuto un importante rinnovamento, che ha saputo coniugare la sua identità originaria con nuovi interventi di riqualificazione architettonica e urbana. Oggi offre una varietà di immobili che spaziano dai raffinati loft e appartamenti ristrutturati con gusto contemporaneo, alle residenze storiche dal fascino unico.
Il quartiere è animato da una vivace vita culturale e sociale, grazie alla presenza di rinomati ristoranti, bistrot, gallerie d’arte e spazi dedicati alla creatività. La vicinanza all’Università e a importanti poli culturali rende San Lorenzo una zona dinamica e cosmopolita, ideale per chi desidera vivere in un contesto urbano dal forte carattere, senza rinunciare alla comodità dei servizi.
La rete di trasporti pubblici, unita alla prossimità con la Stazione Termini, garantisce collegamenti rapidi con ogni parte della città e con gli aeroporti. L’acquisto di una proprietà a San Lorenzo rappresenta non solo una scelta di stile, ma anche un investimento interessante in un quartiere in costante evoluzione e apprezzamento.

Materiali e Forniture
- Aria condizionata con funzionalità caldo/freddo; gli ambienti giorno/notte sono climatizzati separatamente;
- Infissi a bassa trasmissività con apertura a vasistas per il ricircolo dell’aria ed ottimo confort acustico;
- Isolamento termo/acustico pareti esterne e confinanti;
- Portoncino di ingresso blindato con cilindro europeo;
- Cucina completa di elettrodomestici: piano cottura ceramico, frigo con congelatore, lavapiatti e cappa aspirante;
- Predisposizione per lavatrice in vano dedicato;
- Rubinetteria con cartucce ceramiche e sanitari a basso consumo di acqua;
- Bagni completi di piano lavabo, cassettiere e box doccia;
- Impianti idrici con chiusure centralizzate;
- Gres porcellanato in pasta con altissima resistenza all’usura;
- Illuminazione led controllata mediante domotica e tagli di luce dedicati;
- Prese USB a parete;
- Pittura anti-inquinamento per il miglioramento della qualità dell’aria;
- Garanzia due anni sugli impianti;
- Libro Casa Immoveo;
- Immobile conforme alla Direttiva Europea «CASE GREEN»;
- ECO IMMOBILE Pronto da abitare!
VIRTUAL TOUR DELL'APPARTAMENTO
CLICCA QUI PER VISITARE L'APPARTAMENTO
LE CASE DI IMMOVEO SONO ATOSSICHE
Per i nostri immobili scegliamo solo sostanze atossiche. I Professionisti Certificati IMMOVEO verificano attentamente che le Imprese qualificate non utilizzino sostanze chimiche pericolose per la salute umana, come la formaldeide o altri composti organici volatili nocivi. IMMOVEO privilegia materiali atossici e vernici ecologiche e anti-microbiotiche in grado di distruggere batteri e virus. Il legno che troverete nella vostra casa proviene solo da produttori certificati CE e FSC ed i parquet che installiamo sono del tipo prefinito, esente da plastificanti (PVC free), con finitura naturale e posa a secco.
LE CASE DI IMMOVEO RISPARMIANO ENERGIA
Il risparmio energetico è nel nostro DNA. Il vostro immobile avrà nuovi infissi eco-sostenibili, con doppi vetri che soddisfano i requisiti delle case a basso consumo energetico. I vostri nuovi infissi avranno l’apertura a vasistas per una migliore ventilazione della casa.
Le caldaie che installiamo sono del tipo a condensazione. In alternativa, utilizziamo la tecnologia a pompa di calore inverter, che permette sia di apportare che di estrarre calore dall’abitazione.
I piani cottura ceramici usano l’energia elettrica, rinnovabile, invece del gas. I nostri sanitari sono sempre del tipo anti-spreco, con miscelatori dotati di rompigetto e nebulizzatori, che consentono un minor consumo, una polizza che copre 1500.000 di sinistro per allagamento per causa del rubinetto stesso, i WC sono studiati con una semibrida che pulisce con soli 5 litri di acqua, a tutto vantaggio del risparmio di una risorsa preziosa come l’acqua.
NELLE CASE DI IMMOVEO SI USANO MATERIALI A “KM ZERO”
Nel ciclo produttivo e nella scelta dei materiali siamo attenti anche ai consumi per il loro trasporto: nello stesso modo in cui preferiamo che i cibi sulla nostra tavola siano a “km zero”, così facciamo per i materiali di ristrutturazione. In questo modo limiteremo le emissioni di carbonio legate al loro trasporto e la preparazione della vostra nuova casa avrà un minor “Carbon Footprint” riducendo l’impatto sul clima globale.
LE CASE DI IMMOVEO USANO ENERGIA RINNOVABILE
Per le nostre case prediligiamo impianti che utilizzano fonti di energia considerate “pulite”, o che utilizzano fonti di energia non rinnovabili (ad esempio il metano) in modo efficiente. Attualmente l’energia elettrica è l’unica vera fonte di energia pulita e rinnovabile. Pulita perché gli impianti che funzionano ad elettricità non rilasciano fumi in atmosfera, e rinnovabile perché può essere prodotta senza usare fonti non-rinnovabili (petrolio, gas, carbone, ecc.).
Le case di IMMOVEO sono dotate di illuminazione led a basso consumo, controllabile tramite la domotica. Questo vi consentirà di avere il controllo, anche remoto, dei vostri dispositivi e limitare ulteriormente i consumi e di limitare ulteriormente il “Carbon Footprint” dei nostri immobili ed il loro impatto sull’ambiente.
LE CASE DI IMMOVEO SONO CERTIFICATE IN UNA ELEVATA CLASSE ENERGETICA
La sostenibilità per noi è importante e crediamo lo sia anche per chi compra le nostre case. Per questo curiamo tutti i dettagli al fine di proporre delle case in classi energetiche elevate, sempre uguali o superiori alla Classe C..
Mostra tutta la descrizione
Posizione
- Città/Dipartimento: Roma
Dettagli dell'edificio
- Funzionalità di raffreddamento: Split
- Parcheggio : Fuori strada
Virtual tour
- Virtual tour:
